Big Ad

Optimize Your Space with Floor Plan DWG Files: A Comprehensive Guide for Efficient Interior Design

Floor Plan Dwg File

Looking for a floor plan DWG file? Find high-quality and detailed floor plans in DWG format for your architectural and design projects.

Are you in the process of designing or remodeling your home? If so, you probably understand the importance of having a well-designed floor plan. A floor plan is essentially a visual representation of how a space will be laid out, including the placement of walls, doors, windows, and furniture. It serves as a roadmap for construction and helps ensure that the end result meets your needs and desires. But where can you find a reliable and accurate floor plan to work with? Look no further than a floor plan DWG file!

What is a Floor Plan DWG File?

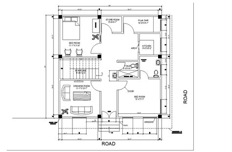
A floor plan DWG file is a digital representation of a building's layout, typically created using computer-aided design (CAD) software. It contains detailed information about the dimensions and arrangement of rooms, walls, doors, windows, and other architectural elements. The DWG file format is commonly used in the architecture, engineering, and construction industry to facilitate the exchange and collaboration of design data.

The Importance of a Floor Plan DWG File

A floor plan DWG file plays a crucial role in the design and construction process. Here are some reasons why it is considered an essential asset for architects, engineers, and contractors:

Accurate Measurement and Visualization

The floor plan DWG file provides accurate measurements of various architectural elements, allowing professionals to visualize the space accurately. From room sizes to wall thicknesses, every detail can be precisely represented in the digital file. This level of accuracy helps architects and designers plan the layout effectively and identify potential issues before construction begins.

Efficient Space Planning

With a floor plan DWG file, architects can efficiently plan the allocation of space within a building. They can arrange rooms, furniture, and fixtures in a way that optimizes functionality and flow. By visualizing the space digitally, architects can experiment with different configurations and make informed decisions about the best use of available space.

Collaboration and Communication

A floor plan DWG file serves as a common language for professionals involved in the construction process. It allows architects, engineers, contractors, and other stakeholders to collaborate effectively by sharing and reviewing the same file. This improves communication, reduces errors, and ensures that everyone is on the same page when it comes to the design and layout of the building.

The Benefits of Using Floor Plan DWG Files

Using floor plan DWG files offers several advantages over traditional paper-based drawings or other file formats. Here are some key benefits:

Editable and Scalable

DWG files can be easily edited and scaled without any loss of quality or clarity. Architects and designers can make changes to the floor plan as needed, such as resizing rooms or modifying wall positions. This flexibility enables them to adapt the design to meet evolving requirements or client preferences.

Compatibility with CAD Software

DWG is a widely recognized file format in the CAD industry. It is compatible with various CAD software, making it easy to share and exchange files between different professionals and teams. This compatibility enhances collaboration and streamlines the design and construction process.

Layered Information

Floor plan DWG files often contain layered information, allowing users to toggle specific elements on or off for better clarity. For example, one layer may show the walls, while another layer displays furniture placement or electrical wiring. This layering functionality makes it easier to understand and analyze different aspects of the design.

Tips for Working with Floor Plan DWG Files

To maximize the benefits of floor plan DWG files, consider the following tips when working with them:

Use Compatible Software

Ensure that you are using CAD software that supports the DWG file format to open, edit, and save floor plan files seamlessly. This compatibility will prevent any issues or loss of data during file conversion.

Keep an Organized File Structure

Maintain a well-organized file structure to manage different versions, revisions, and related files associated with the floor plan. This organization will help you quickly locate specific files and ensure smooth collaboration.

Regularly Save Backup Copies

Frequently save backup copies of your floor plan DWG files to prevent any potential data loss due to system crashes or accidental deletions. It's always better to be safe than sorry when it comes to preserving important design files.

Stay Updated with Industry Standards

Keep yourself updated with the latest industry standards and guidelines related to floor plan design and DWG file formats. This knowledge will ensure that your designs meet the required specifications and can be easily shared with other professionals.

Conclusion

A floor plan DWG file is a valuable asset that facilitates accurate measurement, efficient space planning, collaboration, and communication in the architecture, engineering, and construction industry. Utilizing this digital format offers benefits such as editability, compatibility with CAD software, and layered information. By following some essential tips, professionals can make the most of floor plan DWG files and ensure seamless workflows and successful project outcomes.

1. Introduction to Floor Plan DWG File

In the realm of digital drawing, a floor plan DWG file serves as a crucial tool for architects, designers, and engineers. This file format, commonly associated with AutoCAD software, allows professionals to create, edit, and share intricate floor plans with ease. By utilizing the DWG format, users can take advantage of its compatibility with various design software, making it an essential part of the design process.

2. Benefits of a Floor Plan DWG File

The utilization of a floor plan DWG file offers several advantages to professionals in the field. One significant benefit is its easy editing capabilities. Since DWG files are compatible with a wide range of design software, users can make modifications to the floor plan without losing any data or compromising the integrity of the file. Additionally, the DWG format ensures high-quality resolution, making it ideal for printing and presenting to clients.

3. Importance of a Clear Title

When creating a floor plan DWG file, providing a clear and descriptive title is essential. A title serves as an identifier for the file, making it easier to locate, organize, and categorize among other files. Without a clear title, individuals may struggle to differentiate between multiple floor plans, leading to confusion and potential mistakes. Therefore, it is crucial to take the time to create an informative title that accurately represents the content of the file.

4. Challenges of a Title-less Floor Plan DWG File

A floor plan DWG file without a title can pose certain challenges in terms of organization and sharing. Without a clear identifier, locating the desired file among a collection of others becomes a tedious task. This can lead to wasted time and frustration, especially when working on collaborative projects. Additionally, sharing a title-less file with colleagues or clients may result in misunderstandings and misinterpretations of the intended design.

5. Analyzing the Content and Structure

When encountering a floor plan DWG file without a title, it is essential to evaluate its content and structure to understand its purpose. Analyzing the dimensions, room layout, furniture placement, and annotations within the file can provide valuable insights. By examining these elements, one can grasp the overall design concept and make informed decisions regarding modifications or additions.

6. Interpreting the Key Symbols and Annotations

A floor plan DWG file often contains various symbols and annotations that convey important information about the design. These symbols represent specific features such as doors, windows, electrical outlets, and plumbing fixtures. Understanding these symbols is crucial for accurately interpreting the floor plan and avoiding potential errors during the design process. Familiarizing oneself with commonly used symbols and annotations within the DWG file ensures effective communication and collaboration among team members.

7. Collaborative Editing Possibilities

Despite the absence of a title, a floor plan DWG file can still be effectively worked on by multiple individuals in a collaborative design project. By utilizing shared cloud storage or project management software, team members can access and edit the file simultaneously. This allows for seamless collaboration, real-time updates, and efficient progress tracking. However, it is vital to establish clear communication and document any changes made to the file to maintain consistency and avoid confusion.

8. Importance of File Metadata

When a floor plan DWG file lacks a title, including comprehensive metadata becomes even more crucial. Metadata refers to additional information embedded within the file, such as project details, author information, and creation date. By adding relevant metadata, users can provide context and improve searchability, even when the file lacks a clear title. This ensures that the file can be easily identified and categorized within a storage system or database.

9. Issues with File Organization and Searchability

The absence of a title in a floor plan DWG file can lead to challenges in terms of file organization and searchability. Without a clear identifier, locating and categorizing the file within a storage system or database becomes cumbersome. This can result in wasted time and hinder productivity. To mitigate these issues, implementing effective file naming conventions and utilizing metadata are essential. By adopting consistent practices, individuals can streamline the organization and retrieval of title-less floor plan DWG files.

10. Best Practices for Renaming Title-less Files

To enhance ease of use and avoid confusion, it is crucial to follow best practices when renaming floor plan DWG files without titles. Firstly, include relevant project information in the file name, such as the client's name, project type, or location. This provides immediate context and aids in easy identification. Additionally, consider incorporating specific identifiers, such as floor level or room designation, if applicable. Lastly, ensure consistency in file naming across projects to facilitate efficient organization and searchability.

In conclusion, a floor plan DWG file is a valuable asset for professionals in the design industry. While a clear title is essential for easy identification and categorization, the absence of one does not render the file unusable. By analyzing its content and structure, interpreting key symbols and annotations, and implementing effective file organization practices, individuals can navigate and utilize title-less floor plan DWG files efficiently.

Once upon a time, in the world of architecture and design, there was a magical file called the Floor Plan DWG file. This file held the power to bring dreams and visions to life, transforming mere ideas into tangible structures.

The Floor Plan DWG file was a digital representation of a building's layout, created using computer-aided design software. It contained detailed information about walls, doors, windows, and other architectural elements, allowing architects, engineers, and designers to visualize and communicate their ideas effectively.

1. Precision and Accuracy: The Floor Plan DWG file was renowned for its precision and accuracy. Architects and designers could rely on this file to ensure that every measurement and dimension were correct. It provided a level of confidence, knowing that the final structure would be built exactly as planned.

2. Efficiency: With the Floor Plan DWG file, architects and designers could save valuable time and effort. They no longer had to rely on manual drafting techniques, erasing and redrawing lines repeatedly. Instead, they could make changes effortlessly with just a few clicks, streamlining the design process.

3. Collaboration and Communication: The Floor Plan DWG file acted as a universal language among professionals in the field. It facilitated seamless collaboration and communication between architects, engineers, and contractors. Everyone involved could easily understand and interpret the file, ensuring a smooth workflow throughout the project.

4. Visualization: The Floor Plan DWG file brought designs to life in a way that traditional sketches and drawings couldn't. It allowed architects and designers to create realistic 3D renderings, enabling clients and stakeholders to visualize the final product before construction even began. This visualization aspect helped in making informed decisions and adjustments to meet the client's expectations.

5. Future-proofing: The Floor Plan DWG file was not just a tool for the present; it also provided a foundation for future modifications and renovations. As buildings evolve over time, architects and designers could refer back to the original DWG file to make necessary changes or additions, ensuring that the structure remained functional and up to date.

In conclusion, the Floor Plan DWG file was a powerful asset in the world of architecture and design. Its precision, efficiency, collaboration capabilities, visualization features, and future-proofing abilities made it an indispensable tool for professionals in the field. With the Floor Plan DWG file, dreams became reality, and buildings took shape with ease.

Thank you for visiting our blog and taking the time to explore the Floor Plan DWG file without title. We hope that this article has provided you with valuable information and insights into the world of floor plans and their significance in architectural design. Whether you are a professional architect, a student, or simply someone with a keen interest in interior design, we believe that understanding floor plans is crucial for creating functional and aesthetically pleasing spaces.

In this article, we have discussed the importance of floor plans in providing a visual representation of a building's layout. A floor plan serves as a guide for architects, builders, and homeowners alike, helping them understand the flow and functionality of a space. By studying the floor plan, one can easily identify different rooms, their sizes, and their respective locations within the building. This allows for efficient space utilization and ensures that the design meets the specific needs and requirements of its occupants.

Additionally, we have emphasized the significance of the Floor Plan DWG file format. As a widely used file format in the field of architecture, DWG files offer a precise and detailed representation of a floor plan. They enable architects and designers to create, edit, and share their designs with ease. With the help of specialized software, such as AutoCAD, professionals can manipulate the DWG files and customize floor plans according to their clients' preferences and specifications.

We hope that this article has deepened your understanding of floor plans and the role they play in architectural design. If you have any further questions or would like to explore more about floor plans, we encourage you to browse through our blog for additional resources and articles. Thank you once again for visiting, and we look forward to sharing more informative content with you in the future!

Here are some common questions people also ask about Floor Plan DWG files:

  1. What is a Floor Plan DWG file?

    A Floor Plan DWG file is a digital file format commonly used in computer-aided design (CAD) software. It contains detailed information about the layout and dimensions of a building's floor plan, including walls, doors, windows, and other architectural elements.

  2. How can I open a Floor Plan DWG file?

    To open a Floor Plan DWG file, you will need CAD software compatible with the DWG file format. Popular CAD software programs include AutoCAD, DraftSight, and SketchUp. Once you have the appropriate software installed, you can simply open the file by selecting the Open option and browsing for the DWG file on your computer.

  3. Can I edit a Floor Plan DWG file?

    Yes, you can edit a Floor Plan DWG file using CAD software. With the right tools, you can modify the layout, add or remove elements, change dimensions, and customize the design according to your needs. CAD software provides a range of editing features to help you make precise modifications to the floor plan.

  4. Where can I find Floor Plan DWG files?

    You can find Floor Plan DWG files from various sources. One common option is to hire an architect or designer who can provide you with the DWG files of the floor plans they create. Additionally, there are online platforms, libraries, and marketplaces where you can purchase or download pre-made DWG files for different types of buildings and floor plans.

  5. Can Floor Plan DWG files be converted to other formats?

    Yes, Floor Plan DWG files can be converted to other formats if needed. CAD software usually allows you to export or save the DWG file in different formats such as PDF, JPEG, or PNG. This can be useful when sharing the floor plans with others who might not have CAD software.

Remember, Floor Plan DWG files are valuable resources for architects, designers, and anyone involved in the construction or renovation of buildings. They provide a detailed representation of the floor plan, enabling accurate visualization and planning of the space.

0 Response to "Optimize Your Space with Floor Plan DWG Files: A Comprehensive Guide for Efficient Interior Design"

Post a Comment

Iklan Atas Artikel

Iklan Tengah Artikel 1

'width' : 300, 'params' : {} };

Iklan Tengah Artikel 2

Iklan Bawah Artikel