Big Ad

Optimize Your Restaurant Layout with our Customizable Floor Plan DWG

Restaurant Floor Plan Dwg

Looking for a restaurant floor plan in DWG format? Our collection offers detailed and customizable plans to suit your establishment's needs.

Are you looking to design or renovate a restaurant space? Look no further! Our Restaurant Floor Plan DWG service is here to assist you. With our expertise in creating detailed and accurate floor plans, we ensure that every aspect of your restaurant's layout is carefully considered. From the arrangement of tables and chairs to the placement of kitchen equipment, our floor plans are designed to maximize functionality and efficiency. Whether you are a seasoned restaurateur or a budding entrepreneur, our DWG files will provide you with the tools you need to create a successful dining experience. So why wait? Let us help you bring your restaurant vision to life!

Restaurant

An Introduction to Restaurant Floor Plan DWG

A restaurant floor plan is a crucial element in the design and layout of any dining establishment. It serves as a blueprint for the efficient utilization of space, ensuring that the restaurant is well-organized and functional. A DWG file, which stands for Drawing, is a file format used for storing two and three-dimensional design data and metadata. In this article, we will explore the importance of having a restaurant floor plan in DWG format and how it can benefit both owners and designers.

Efficient Space Utilization

One of the primary advantages of using a restaurant floor plan in DWG format is the ability to efficiently utilize the available space. By designing the layout using CAD software, designers can accurately measure and allocate space for essential elements such as kitchen, dining area, bar, restrooms, and storage areas. This ensures that every square foot of the restaurant is optimized, maximizing the revenue potential.

Seamless Workflow

The use of DWG files allows for a seamless workflow between architects, interior designers, and contractors involved in the construction or renovation of a restaurant. By sharing and collaborating on a single DWG file, all parties can work together to make revisions, add annotations, and ensure that the final design meets the client's expectations. This collaborative approach streamlines the entire process, saving time and reducing potential errors.

Visualizing the Design

Another significant advantage of having a restaurant floor plan in DWG format is the ability to visualize the design in both 2D and 3D. With CAD software, designers can create realistic renderings and walkthroughs of the restaurant, allowing owners and stakeholders to get a clear understanding of how the space will look once completed. This visualization aspect helps in making informed decisions about the design elements, furniture placement, and overall ambiance.

Restaurant

Optimized Kitchen Layout

The kitchen is the heart of any restaurant, and its layout plays a vital role in the efficiency of operations. With a restaurant floor plan in DWG format, designers can meticulously plan the kitchen's layout, ensuring that it meets all health and safety regulations while promoting a smooth workflow. The placement of cooking stations, prep areas, storage spaces, and dishwashing stations can be optimized for maximum productivity.

Seating Capacity and Flow

Creating an ideal seating arrangement is crucial for any restaurant's success. A well-designed floor plan in DWG format allows designers to determine the optimal seating capacity based on the available space. They can take into account factors such as table sizes, aisle widths, and circulation flow to ensure customers feel comfortable and have easy access to their tables. This thoughtful planning contributes to an enhanced dining experience and increased customer satisfaction.

Effective Space Zoning

Restaurants often have different sections or zones, such as the bar area, private dining rooms, or outdoor seating. By using a restaurant floor plan in DWG format, designers can effectively zone these areas, creating distinct spaces with their unique ambiance and functionality. This zoning not only adds variety to the dining experience but also allows for better management of customers and staff.

Restaurant

Accurate Cost Estimation

A restaurant floor plan in DWG format provides precise measurements and dimensions, which are essential for accurate cost estimation. Contractors and suppliers can refer to the DWG file to understand the quantities of materials required, such as flooring, tiles, lighting fixtures, and furniture. This level of accuracy helps in preparing detailed project budgets and prevents cost overruns.

Compliance with Building Codes

When designing a restaurant, it is crucial to adhere to local building codes and regulations. A restaurant floor plan in DWG format allows designers to ensure compliance by incorporating all necessary elements, such as fire exits, emergency routes, accessibility features, and ventilation systems. By having a detailed and accurate plan, owners can confidently move forward with the construction or renovation process, knowing that their establishment meets all legal requirements.

Future Modifications and Expansion

A restaurant's needs may evolve over time, requiring modifications or expansions to accommodate changing demands. With a restaurant floor plan in DWG format, future modifications become easier to visualize and implement. Designers can make adjustments to the existing plan, adding new sections, expanding seating capacity, or incorporating additional features without disrupting the overall functionality of the establishment.

Conclusion

Having a restaurant floor plan in DWG format offers numerous benefits for both owners and designers. It allows for efficient space utilization, seamless collaboration, accurate cost estimation, compliance with building codes, and ease of future modifications. With the help of CAD software, restaurant designs can be visualized in detail, ensuring that every aspect of the layout and functionality is carefully considered. By utilizing this powerful tool, restaurant owners can create spaces that not only look aesthetically pleasing but also offer a smooth and enjoyable experience for their customers.

Welcome to our detailed explanation of the Restaurant Floor Plan DWG

In this guide, you will learn all about the structure, purpose, and significance of a restaurant floor plan in DWG format. A restaurant floor plan DWG refers to a digital file format that represents the layout and design of a restaurant's floor space using AutoCAD software. This specific file format allows architects, designers, and restaurant owners to create, view, and modify the floor plan using computer-aided design.

Importance of a Well-Designed Floor Plan

A thoughtfully designed restaurant floor plan is crucial for ensuring efficient operations, maximizing available space, and creating a pleasant dining experience for customers. It helps in equipment placement, traffic flow, and designing functional seating areas. By carefully considering these factors, a well-designed floor plan can contribute to the overall success of a restaurant.

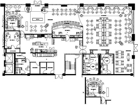
Components of a Restaurant Floor Plan

A typical restaurant floor plan includes various vital components like the dining area, kitchen, bar, reception/waiting area, restrooms, storage areas, and emergency exits. Each component is strategically placed to optimize the workflow and customer experience. For example, the dining area should be easily accessible from the entrance, while the kitchen should be positioned near the storage areas to facilitate efficient ingredient retrieval.

Seating Arrangements

The seating arrangement on a restaurant floor plan is carefully considered to accommodate various party sizes, support different dining experiences (such as intimate settings or group dining), and ensure efficient table turnover as per the establishment's capacity and branding. The layout should allow for comfortable spacing between tables, taking into account factors such as privacy, noise levels, and accessibility.

Workflow and Traffic Flow

The restaurant floor plan plays a crucial role in defining the workflow and traffic flow within the establishment. It allows for the smooth movement of staff, customers, and food from the kitchen to the dining area, minimizing congestion and maximizing efficiency. The positioning of key areas, such as the bar and reception/waiting area, should facilitate easy navigation for both customers and staff.

Kitchen Design

The kitchen area is an integral part of the restaurant floor plan and requires careful consideration of equipment placement, workstations, safety measures, and ventilation systems. An efficient kitchen design helps chefs and staff work seamlessly, resulting in higher productivity and food quality. Proper zoning of different kitchen functions, such as prep stations, cooking areas, and dishwashing, enhances workflow and minimizes cross-traffic.

Restrooms and Accessibility

The positioning and accessibility of restrooms are crucial elements in a restaurant floor plan to ensure convenience for customers and meet accessibility requirements. A properly designed restroom layout will allow easy access for all patrons, including those with disabilities. It is important to consider factors such as adequate space, privacy, and proximity to the dining area when planning restroom placement.

Compliance with Building Codes

A restaurant floor plan in DWG format also allows for easy compliance with applicable building codes and regulations. The file can be shared with architects, contractors, and local authorities to ensure that the restaurant design meets all safety and legal requirements. By incorporating these codes into the initial floor plan, potential issues or delays during the construction process can be minimized.

Flexibility and Future Modifications

A digital restaurant floor plan in DWG format offers flexibility for future modifications and expansions. As the restaurant evolves or undergoes renovations, the file can be easily updated, and changes can be made without having to start from scratch, saving time and expenses. This adaptability allows restaurant owners to respond to changing needs, trends, and customer demands while maintaining a cohesive design.

In conclusion, a restaurant floor plan in DWG format is an essential tool for architects, designers, and restaurant owners. It helps in visualizing the layout, optimizing space, ensuring efficient operations, and complying with safety regulations. By considering factors such as seating arrangements, workflow, and accessibility, a well-designed floor plan can contribute to the success of a restaurant by creating a pleasant dining experience for customers and facilitating smooth operations for staff.

Once upon a time, in the bustling city of Foodville, there was a restaurant called The Gourmet Garden. It was known for its delectable cuisine and inviting ambiance. The success of this restaurant could be attributed not only to its delicious food but also to its well-thought-out restaurant floor plan DWG.

1. First Impression:

As soon as customers stepped foot into The Gourmet Garden, they were greeted by an open and spacious entrance. The reception area had a warm and welcoming feel, with a comfortable seating arrangement for guests waiting for their tables. The restaurant's floor plan DWG ensured that the first impression was a positive one.

2. Efficient Flow:

The layout of the restaurant was carefully designed to ensure efficient traffic flow. The dining area was divided into different sections, each with its own unique atmosphere. Customers could choose between cozy booths, intimate tables, or even a private dining room for special occasions. The restaurant floor plan DWG allowed smooth movement for both the staff and the customers, preventing any overcrowding or congestion.

3. Kitchen Accessibility:

The heart of any restaurant is its kitchen, and The Gourmet Garden was no exception. The restaurant floor plan DWG included a well-organized and spacious kitchen area. The chefs had easy access to all the necessary ingredients and equipment, ensuring smooth operations during peak hours. The kitchen was strategically located close to the dining area, allowing quick and efficient service to the customers.

4. Staff Coordination:

The restaurant floor plan DWG also played a crucial role in facilitating staff coordination. The waitstaff had clear paths to navigate through the dining area, resulting in prompt service and satisfied customers. The positioning of the service stations and the waitstaff's proximity to the kitchen made it easy for them to communicate with the chefs and deliver orders promptly.

5. Aesthetic Appeal:

The restaurant floor plan DWG not only focused on functionality but also on aesthetic appeal. The interior design and décor were carefully planned to create a visually pleasing atmosphere. The layout allowed for natural light to flow in, enhancing the overall ambiance. The combination of comfortable seating, soothing colors, and tasteful decorations created an inviting and enjoyable dining experience.

In conclusion, the restaurant floor plan DWG of The Gourmet Garden played a vital role in its success. It allowed for a positive first impression, efficient flow, easy kitchen accessibility, staff coordination, and aesthetic appeal. The attention to detail in the floor plan ensured that every aspect of the restaurant's operations was optimized. Customers continued to flock to The Gourmet Garden not only for its delicious food but also for the exceptional dining experience created by its well-designed restaurant floor plan DWG.

Thank you for visiting our blog and taking the time to explore our detailed discussion on Restaurant Floor Plan DWG. We hope that you have found this article insightful and informative, providing you with a comprehensive understanding of the importance and benefits of utilizing a well-designed floor plan for your restaurant.

Throughout this article, we have emphasized the significance of a thoughtfully crafted floor plan in enhancing the overall functionality and efficiency of your establishment. By utilizing a DWG file format, you have access to a versatile and user-friendly platform that allows for easy customization and manipulation of your restaurant's layout. With the ability to make modifications and adjustments effortlessly, you can ensure that your floor plan aligns perfectly with your vision and meets the specific needs of your business.

Moreover, we have highlighted the various key elements that should be taken into consideration when designing a restaurant floor plan, such as traffic flow, seating arrangements, kitchen accessibility, and customer experience. By carefully analyzing these factors and implementing them into your floor plan, you can create a harmonious and functional space that maximizes efficiency and caters to the comfort and satisfaction of your guests.

In conclusion, a well-designed restaurant floor plan can significantly contribute to the success and profitability of your business. By utilizing a DWG file format, you have the flexibility and convenience to customize and adapt your floor plan as needed, ensuring that it aligns perfectly with your vision and operational requirements. We hope that this article has provided you with valuable insights and inspiration, enabling you to create a functional and inviting space that leaves a lasting impression on your customers. Thank you once again for visiting our blog, and we look forward to sharing more informative content with you in the future!

People also ask about Restaurant Floor Plan DWG:

1. What is a restaurant floor plan DWG?

A restaurant floor plan DWG is a digital file format used by AutoCAD software. It contains a detailed representation of a restaurant's floor layout, including walls, doors, windows, furniture, and equipment. It allows architects, designers, and restaurant owners to create, modify, and visualize the physical arrangement of the establishment.

2. Where can I find restaurant floor plan DWG files?

You can find restaurant floor plan DWG files online on various platforms and websites that offer architectural resources. Many design firms, CAD libraries, and architectural communities provide free or paid access to a wide range of floor plan templates and pre-designed restaurant layouts in DWG format.

3. How can I use a restaurant floor plan DWG for my establishment?

To use a restaurant floor plan DWG for your establishment, you will need to have AutoCAD software or a compatible program that can open and edit DWG files. Once you have access to the software, you can import the DWG file, modify it according to your specific needs, and customize the layout to suit your restaurant's requirements. It provides a visual representation of the space and aids in planning seating arrangements, kitchen placement, restroom locations, and other essential elements of the restaurant.

4. Can I hire a professional to create a custom restaurant floor plan DWG?

Absolutely! If you prefer not to create or modify a restaurant floor plan DWG yourself, you can hire a professional architect, interior designer, or CAD specialist who has experience in creating custom floor plans. They can work closely with you to understand your vision, requirements, and budget, and then develop a tailored DWG file that meets your specific needs. Hiring a professional ensures accuracy, adherence to building codes, and efficient space utilization.

5. Are there any legal considerations when using restaurant floor plan DWG files?

When using restaurant floor plan DWG files, it is essential to respect intellectual property rights. If you download or purchase a DWG file from an online source, ensure that you have the necessary permissions to use it for your commercial purposes. Some websites offer royalty-free or licensed DWG files explicitly designed for commercial use, while others may have restrictions on usage. It is always recommended to review the terms and conditions associated with the DWG file or consult a legal professional if you have any concerns.

0 Response to "Optimize Your Restaurant Layout with our Customizable Floor Plan DWG"

Post a Comment

Iklan Atas Artikel

Iklan Tengah Artikel 1

'width' : 300, 'params' : {} };

Iklan Tengah Artikel 2

Iklan Bawah Artikel