Big Ad

Optimize Your Home Design with CAD: Creating Stunning Floor Plans for Every Space

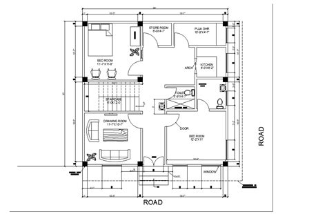
Floor Plan In Cad

Learn how to create floor plans in CAD, the industry-standard software for architects and designers. Design your dream space with precision and accuracy.

When it comes to designing a space, having a well-thought-out floor plan is crucial. With the advancement of technology, Computer-Aided Design (CAD) has become an invaluable tool for architects, interior designers, and contractors. CAD allows professionals to create detailed and accurate floor plans, utilizing a variety of features and tools that make the process efficient and precise. Whether you are renovating your home, designing a commercial space, or planning a new construction project, utilizing CAD software can greatly enhance the visualization and execution of your floor plan.

Firstly, CAD offers the advantage of creating a 2D or 3D representation of a floor plan, providing a realistic and immersive view of the space. This allows designers and clients to visualize the layout, proportions, and flow of the area before any construction takes place. By being able to explore the space from different angles and perspectives, potential issues or design flaws can be identified and resolved early on, saving time and resources in the long run. Additionally, CAD software enables easy modifications and adjustments to the floor plan, making it a flexible and dynamic tool throughout the design process.

In addition to its visual benefits, CAD also provides precise measurements and calculations, ensuring accuracy and efficiency in the construction phase. With the ability to input exact dimensions, professionals can determine the optimal placement of furniture, fixtures, and utilities. This level of precision minimizes the risk of errors during construction, resulting in a smoother and more cost-effective building process. Moreover, CAD allows for seamless collaboration between different stakeholders involved in the project, as the floor plan can be easily shared and modified, fostering effective communication and coordination.

In conclusion, the utilization of CAD software for creating floor plans has revolutionized the design and construction industry. Its ability to provide realistic visualizations, precise measurements, and collaborative platforms has significantly improved the efficiency and accuracy of the design process. With CAD, professionals can confidently create floor plans that meet the needs and desires of their clients, while also ensuring a seamless execution of the project. Embracing CAD technology is undoubtedly a game-changer in the world of floor plan design.

Floor

Introduction

Floor plans are an integral part of the architectural design process. They provide a visual representation of the layout and dimensions of a building or space. With the advancement in technology, computer-aided design (CAD) software has become a popular tool for creating accurate and detailed floor plans. In this article, we will explore the benefits and importance of using CAD for floor plan design.

What is CAD?

CAD stands for Computer-Aided Design, which refers to the use of computer software to create, modify, analyze, and optimize designs. CAD software provides architects, engineers, and designers with the tools to create precise and intricate drawings, including floor plans.

Precise Measurements

One of the key advantages of using CAD software for floor plan design is the ability to make precise measurements. CAD tools allow designers to input exact dimensions and scale their drawings accordingly. This ensures that all elements of the floor plan are accurately represented, from the overall layout to individual room sizes.

Efficient Design Process

CAD software streamlines the design process by automating repetitive tasks and providing a wide range of design tools and features. Designers can easily drag and drop pre-made symbols, furniture, and fixtures into their floor plans, saving time and effort. Additionally, CAD software allows for easy modifications and updates, enabling designers to quickly iterate and refine their designs.

Enhanced Visualization

With CAD software, designers can create realistic 3D visualizations of their floor plans. This helps clients and stakeholders better understand the spatial layout and aesthetics of the design. 3D visualization also allows for better evaluation of design choices, such as furniture placement, lighting, and material selection.

Collaboration and Communication

CAD software facilitates seamless collaboration and communication between architects, engineers, and other project stakeholders. Designs can be easily shared and reviewed, allowing for faster decision-making and feedback incorporation. This ensures that everyone involved in the project is on the same page and reduces the chances of misinterpretation or errors.

Improved Accuracy

By using CAD software, designers can create floor plans with a high level of accuracy. The software automatically aligns elements, calculates areas, and checks for inconsistencies or errors. This eliminates the need for manual calculations and reduces the risk of human error, resulting in more precise and reliable floor plans.

Easy Documentation

CAD software simplifies the documentation process by generating detailed and standardized drawings. Floor plans created in CAD can include dimensions, annotations, and other essential information that aid in construction and renovation projects. These drawings can be easily exported and printed, ensuring clear communication between the design team and contractors.

Cost and Time Savings

Using CAD software for floor plan design can lead to significant cost and time savings. The efficiency and accuracy of CAD tools help minimize design errors, which can be costly to rectify during the construction phase. Additionally, the ability to quickly modify and update designs reduces the overall design timeline, allowing projects to progress more efficiently.

Integration with Other Design Software

CAD software seamlessly integrates with other design and analysis tools, such as structural engineering software or energy analysis software. This integration enables designers to assess the structural integrity and energy efficiency of their floor plans, ensuring compliance with building regulations and standards.

Conclusion

CAD software has revolutionized floor plan design by providing architects and designers with powerful tools to create accurate, detailed, and visually appealing floor plans. The benefits of using CAD for floor plan design include precise measurements, efficient design processes, enhanced visualization, improved accuracy, easy collaboration, and time and cost savings. By leveraging the capabilities of CAD software, architects and designers can create functional and aesthetically pleasing spaces that meet the needs of their clients.

Introduction

Imagine being able to visualize and design your dream home or office space with utmost precision. Well, with the help of CAD (Computer-Aided Design) software, creating floor plans has never been easier. In this article, we will delve into the fascinating world of floor plans in CAD, exploring the importance, benefits, and techniques used in this creative process.

Understanding Floor Plans

Floor plans are two-dimensional representations of a building or space, typically viewed from above. They provide detailed information about the layout, dimensions, and structure of a space, allowing architects, engineers, and designers to bring their ideas to life.

CAD and Floor Plan Design

CAD software revolutionized the way architects and designers create floor plans. Through the use of advanced tools and features, CAD provides a precise and efficient platform for designing, editing, and rendering floor plans with superior accuracy.

Importance of Accurate Measurements

One of the key elements in creating floor plans in CAD is ensuring accurate measurements. By inputting precise dimensions, designers can ensure that furniture, appliances, and other elements fit seamlessly into the space. This attention to detail is vital in optimizing functionality and aesthetics.

Customization and Flexibility

CAD software offers unparalleled customization and flexibility when creating floor plans. Designers can easily adjust layouts, experiment with various configurations, and explore different design possibilities in real-time. This flexibility allows for efficient exploration of multiple design options without starting from scratch.

Efficient Collaboration and Communication

CAD enables efficient collaboration and communication between architects, engineers, and clients. By sharing digital floor plans, stakeholders can provide valuable feedback, make suggestions, and approve designs remotely. This streamlines the decision-making process and ensures everyone is on the same page.

Visualization and Realism

One of the most significant advantages of CAD software is its ability to provide realistic 3D visualizations of floor plans. By incorporating textures, colors, and lighting effects, designers can create virtual walkthroughs, giving clients a genuine sense of what the finished project will look like.

Accessibility and Portability

Gone are the days of carrying around bundles of paper floor plans. With CAD software, floor plans are easily accessible and portable. Designers can access their projects from anywhere, making modifications on the go and sharing files electronically, enhancing productivity and efficiency.

Time and Cost Savings

Creating floor plans in CAD significantly reduces the time and cost associated with traditional hand-drawing methods. With automated features, designers can quickly generate accurate floor plans, reducing human error and the need for tedious manual calculations. This efficiency translates into both time and cost savings for the design process.

Future Trends and Innovations

The world of floor plans in CAD is constantly evolving. With advancements in technology, we can expect to see more sophisticated tools and features, such as Artificial Intelligence and Virtual Reality integration, making the design process even more intuitive and immersive.

By harnessing the power of CAD software, designers can unleash their creativity, improve collaboration, and deliver exceptional floor plans that meet the evolving needs of clients and users. So, whether you're designing a cozy home or a sprawling office space, CAD is your gateway to turning imagination into reality.

Once upon a time in the world of architecture and design, there was a revolutionary tool called Computer-Aided Design, or CAD for short. This tool allowed architects and designers to create detailed floor plans with precision and accuracy. Let me take you on a journey through the eyes of a floor plan in CAD.

1. Introduction: - As a floor plan in CAD, my purpose is to serve as a visual representation of a building's layout. I am created using advanced software that enables architects to draft, design, and modify buildings efficiently. - My primary goal is to provide a clear understanding of the spatial arrangement, dimensions, and relationships between different areas within a structure.

2. Creation Process: - Architects start by gathering requirements and conceptualizing the layout of a building in their minds. - They then use CAD software to bring their vision to life by drawing walls, doors, windows, and other architectural elements. - Using precise measurements, they define the dimensions of each room, corridor, and staircase, ensuring accuracy in every detail. - Colors and textures are added to distinguish various materials and surfaces, giving me a realistic appearance.

3. Benefits and Advantages: - Unlike traditional hand-drawn floor plans, I offer numerous advantages. Firstly, I can be easily modified and updated without having to redraw the entire plan. - Additionally, I allow architects to experiment with different design options quickly, enabling them to make informed decisions about space utilization. - I also facilitate collaboration among architects, engineers, and clients, as I can be easily shared, reviewed, and commented on electronically.

4. Precision and Accuracy: - One of my key strengths is precision. Every line, angle, and measurement in my design is mathematically accurate, ensuring that contractors can follow the plan precisely during construction. - I am also capable of generating accurate quantity take-offs, which helps in estimating materials and costs for the project. - My level of detail allows architects to identify potential design flaws or conflicts before the construction phase, saving time and resources.

5. Visualization and Presentation: - As a floor plan in CAD, I offer a realistic and immersive visualization of the building's interior spaces. - By adding furniture, fixtures, and other elements, architects can create virtual walkthroughs and renderings, giving clients a clear understanding of the final result. - I can also be integrated with other architectural software, allowing for the creation of 3D models and simulations.

6. Conclusion: - In conclusion, as a floor plan in CAD, I am an indispensable tool for architects and designers in the modern era. - My ability to provide precision, accuracy, flexibility, and visual representation makes me an essential part of the architectural process. - Through my existence, I aim to streamline the design process, enhance communication, and ultimately contribute to the creation of beautiful and functional buildings.

And thus, the story of a floor plan in CAD comes to an end, leaving behind a legacy of innovation and efficiency in the world of architecture.

Thank you for taking the time to visit our blog and learn more about floor plans in CAD. We hope that the information provided has been helpful and informative, giving you a better understanding of the importance and benefits of using CAD software for floor planning. As we conclude this article, we would like to summarize the key points discussed and leave you with some final thoughts.

Firstly, CAD software is an invaluable tool for creating accurate and detailed floor plans. With its precise measurement capabilities and advanced features, CAD allows architects, designers, and homeowners to visualize and plan their spaces with ease. Whether you are designing a new home or renovating an existing one, CAD provides the flexibility and accuracy needed to bring your vision to life.

Secondly, CAD software offers a wide range of tools and options to enhance your floor plans. From 3D modeling to lighting simulations, CAD allows you to explore different design possibilities and make informed decisions. Additionally, CAD makes it easier to collaborate with other professionals involved in the project, such as engineers and contractors, by providing a platform for seamless communication and sharing of files.

In conclusion, incorporating CAD into your floor planning process can greatly improve the efficiency and accuracy of your designs. Whether you are a professional in the field or a homeowner looking to visualize your dream space, CAD software offers a wealth of benefits that cannot be ignored. We hope that this article has inspired you to explore CAD as a tool for your floor planning needs. If you have any further questions or would like to learn more, please feel free to reach out to us. Thank you once again for visiting our blog, and we wish you the best of luck in your floor planning endeavors!

1. What is a floor plan in CAD?

A floor plan in CAD refers to a digital representation of a building's layout or interior space created using computer-aided design (CAD) software. It includes detailed information about the dimensions, structure, and features of each room, as well as the overall layout of the building.

2. How can I create a floor plan in CAD?

To create a floor plan in CAD, you need to have access to CAD software such as AutoCAD, SketchUp, or Revit. These programs offer various tools and features to help you draw walls, add doors and windows, insert furniture, and annotate your floor plan with measurements and other details. You can start by drawing the basic outline of the building and then adding layers of detail to accurately represent the space.

3. What are the benefits of using CAD for floor plans?

Using CAD for floor plans offers several advantages. Firstly, it allows for precise and accurate measurements, ensuring that the floor plan reflects the actual dimensions of the space. CAD software also enables easy modifications and revisions, allowing you to quickly make changes without having to redraw the entire floor plan. Additionally, CAD provides the ability to generate 3D views and walkthroughs, giving a realistic visualization of the space before construction or remodeling takes place.

4. Can I import existing floor plans into CAD software?

Yes, most CAD software supports the import of existing floor plans. You can typically import floor plans in various file formats such as DWG, DXF, PDF, or image files like JPEG or PNG. Once imported, you can use the CAD software's tools to modify, annotate, or enhance the existing floor plan as needed.

5. Are there any CAD standards or guidelines for creating floor plans?

Yes, there are industry standards and guidelines for creating floor plans in CAD. These standards ensure consistency and interoperability between different CAD software and professionals working on the same project. Commonly used standards include layer naming conventions, text style guidelines, line weights, and symbol libraries. It is advisable to familiarize yourself with these standards to ensure your floor plans adhere to best practices and can be easily shared with others.

0 Response to "Optimize Your Home Design with CAD: Creating Stunning Floor Plans for Every Space"

Post a Comment

Iklan Atas Artikel

Iklan Tengah Artikel 1

'width' : 300, 'params' : {} };

Iklan Tengah Artikel 2

Iklan Bawah Artikel